Weston Middle School

Technology/Engineering Course Materials

Weston, Massachusetts
| Home | Site Map | Lego Robotics | Grade 7 Design-Construction | Grade 8 Design-Construction | Links |
| Summer Programs | MCAS Review |
Grade 7 Design-Construction

 Design Basics Links

Course Home

Syllabus

Calendar

Class Notes

Assignments

Gallery

Frameworks/MCAS

Additional Material

ISSUES IN DESIGN:

1) LOCATION-LOCATION-LOCATION!

What makes land in Weston so valuable?

Country living near a big city- i.e., The Massachusetts Turnpike, Rte 128

2) ORIENTATION: Which way is south? Where do you want the sun shining in the morning and afternoon?

3) FRONT PORCHES as transition between street and living space:

4) FLOW OF ROOMS:

Level 1:

Street- Porch- Entry Way( w/ hall closet?)- Reception Area/Living Room/Dining Area/Kitchen ("Great Room")- 1/2 Bath

Level 2:

Stairs and/or Hallway or Foyer- Full Bath, 2-3 Bedrooms

Windows for all Rooms

 

"Typical" Room Sizes:

Kitchen: 14' x 16'
Living Room: 16' x 18'
Bedroom: 12' x 12'
Dining Rm: 12' x14'
Bath Room 10' x 6'
Hallway: 14' x 6'
Closet: 6' x 4'

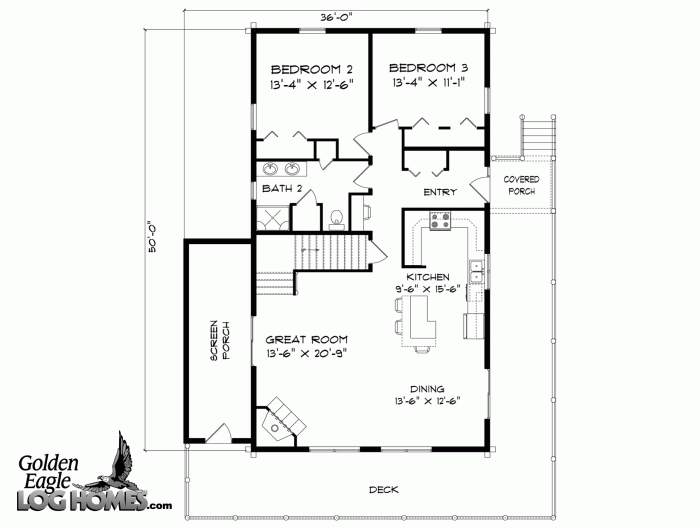
Typical Floor Plans:


Below: Note "Great Room" concept:

Floor Plan of Crane Estate, Ipswich, MA

 

 

 

 

New Orleans Houses by APD Architects ( slideshow)

New Orleans- Master Plan

Bensonwood Homes:

 

 
Revised January 2011 by Jonathan Dietz, dietzj@mail.weston.org